
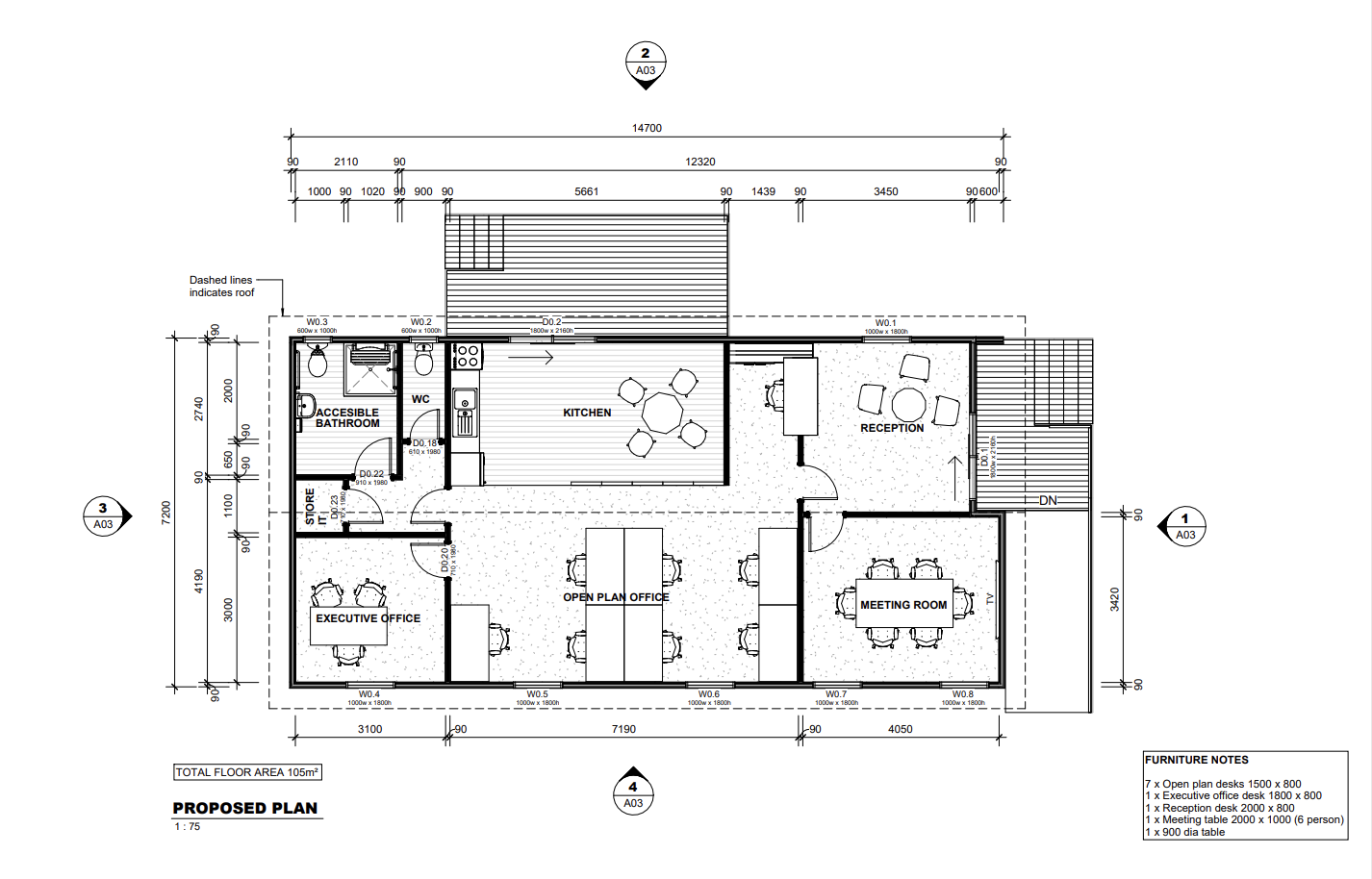
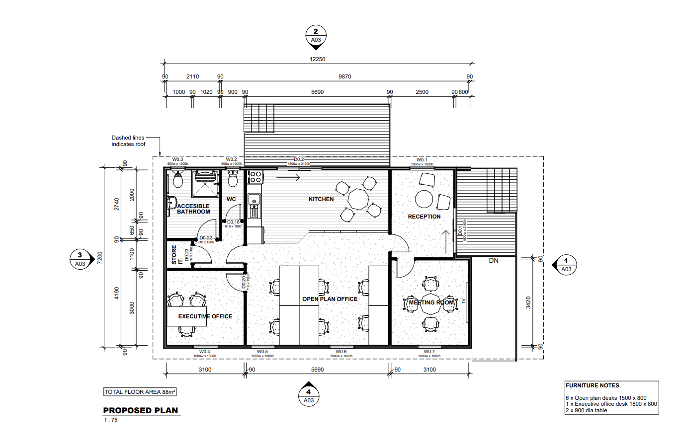
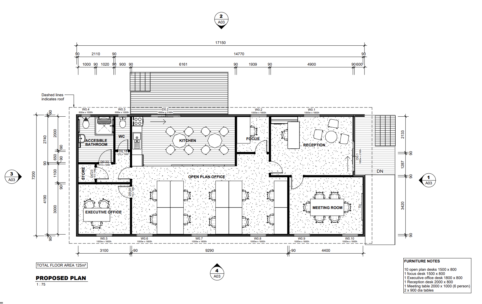
Do you need a new office but don’t want the cost, disruption, and complexity of traditional commercial construction and fitout? We can complete the build in our offsite factory and all the interior fitout as well, delivering you an affordable office facility that's ready to move in. Plans can be extensively modified to suit your brand, site, and requirements. The below office plans are fitted out to a high standard with quality materials and finishes so that your team have an enjoyable and productive work environment. Also, these light commercial buildings can be customized to be used for medical centres, dental studios, retail, early childhood education and many more applications.
We will deliver your brand new building within 6 months.
Our standardised processes and stocked materials result in reduced costs.
We can customise your building to suit your unique requirements.
Our prefabs maximise thermal efficiency and reduce environmental impact.
We can build more than 60 buildings per year.
Our full project management ensures reduced stress and increased satisfaction.

Weathertex
The Weathertex warranty guarantees no rotting, splitting, or cracking for 25 years. Made from 97% hardwood and 3% paraffin wax, this cladding is low maintenance, 100% natural, and more sustainable than brick, with a lower embodied energy and less than zero carbon footprint.
Engineered timber and Rigid Air Barrier
We use engineered timber for our wall framing to increase strength and reduce the timber to insulation ratio. Combined with Rigid Air Barrier board around the perimeter and a particular focus on airtightness, we ensure optimised thermal performance and maximum strength.
Metra Panel and R7.0 insulation
To reduce energy costs and provide exceptional bracing, we use 25mm Solid Metra Panel ceilings in large format sheets. On top of this, we use insulation with an excess of R7.0 to ensure your building is extremely efficient to heat and cool.
Less disruption, more flexibility
By completing all construction in our specialised factory, we minimise disruption to your holiday park, achieve precise material measurements, and reduce waste. And, should your requirements change, you can also relocate the building in the future.