Nest MD70 T-A Minor Dwelling (Granny Flat) Design

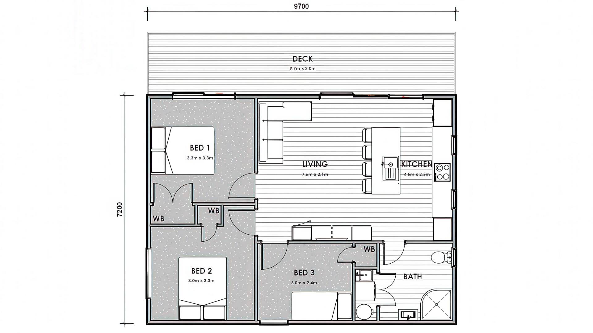
Three Bedroom - 70 sqm 

Length 9.7m - Width 7.2m

3 Bedrooms

1 Toilets

1 Bathrooms

The NEW Nest 70-TA is a spacious, versatile granny flat or minor dwelling designed for those who want to maximize bedrooms in the smallest footprint. It features three bedrooms with wardrobes, and a spacious bathroom, kitchen and living area. Build to meet the new consent exemption granny flat rules which are coming into effect in early 2026.

House Plans

Get started with your Nest MD70-TA estimate

Follow the simple steps to complete your estimate

1
2
3

Step 1/3

Where are you located

Please let us know your location to estimate the delivery of your home.

Select one option

Taranaki
Manawatu/Wanganui
Wairarapa
Taupo/Central Plateau
Hawkes Bay

Step 2/3

What level of on-site services would you require?

Let us know how much site work is potentially required. Subject to a site inspection.

Select one option

Rural Connections if far from existing service lines.
Town Connections if close to existing service lines.

Step 3/3

Complete your estimate.

Thank you for taking the time to complete the form. Please enter your email below and we’ll send your estimate to your inbox.